top of page
dom tarczyn. modernizacja
data. 2016
lokalizacja. Tarczyn k/Warszawy
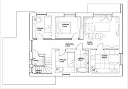
opis projektu. Modernizacja budynku jednorodzinnego typu "kostka" z czasów PRL. Intencją projektu było wykreowanie domu wielopokoleniowego dla dwóch rodzin, w formie autonomicznych mieszkań na obu kondygnacjach z oddzielnymi wejściami. Wspólny jest jedynie wiatrołap, za nim przestrzeń już się rozdziela na hall mieszkania na parterze i hall z klatką schodową mieszkania górnego z osobnymi wejściami. W ten sposób zapewniona jest prywatność obu mieszkających w jednym domu rodzin. Niektóre wizualizacje przedstawiają dom z różnymi wersjami daszka przy wejściu. Gzyms attyki zaprojektowany został aby ukryć rynny.
galeria projektu. 33 obrazy
![]() | ![]() | ![]() |
|---|---|---|
![]() | ![]() | ![]() |
![]() | ![]() | ![]() |
![]() | ![]() | ![]() |
![]() | ![]() | ![]() |
![]() | ![]() | ![]() |
![]() | ![]() | ![]() |
![]() | ![]() | ![]() |
![]() | ![]() | ![]() |
![]() | ![]() | ![]() |
![]() | ![]() | ![]() |
bottom of page
































